32
Jeonju Univ. — Social Building Lounge
Jeonju Univ. — Social Building Lounge
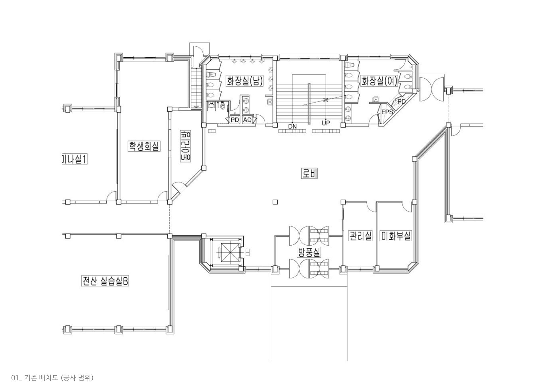
Renewal of a student lounge inside Jeonju University’s Social Sciences building. The space functions as a natural pause along circulation routes, creating a comfortable place for short breaks and casual discussion.
Photography
22 images





















